Agenzia Grimaldi Padova

Centro, spazioso appartamento ultimo piano su due livelli con garage

Centro, spazioso appartamento ultimo piano su due livelli con garage

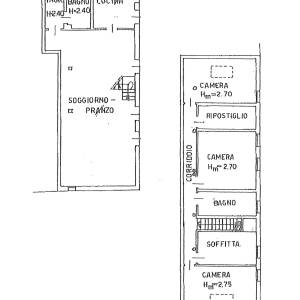
Inserito in ottimo contesto residenziale con giardino alberato ben curato, delizioso e ampio appartamento all'ultimo piano sviluppato su due livelli con finiture signorili. Ingresso con comoda armadiatura a muro, meraviglioso salone con zona conversazione con caminetto e zona pranzo, cucina abitabile separata tutta arredata, bagno con lavanderia; una bella scala a vista in legno conduce al piano superiore con una zona notte servita da un corridoio funzionale a tutte le 4 camere da letto di cui 3 matrimoniali e una singola spaziosa, 2 bagni entrambi finestrati. Al piano primo sotto strada raggiungibile con l'ascensore, spazioso garage di proprietà. Pavimenti in iroko, serramenti in legno con vetrocamera e scuri in legno, impianto di condizionamento canalizzato in ogni stanza, riscaldamento autonomo. La posizione permette di godere di una impagabile tranquillità ma allo stesso tempo di avere tutti i servizi a portata di mano! € 540.000,00 ape 129,63 Cl. E

  • zona giorno
Grimaldi Padova

Grimaldi Padova
Padova - 35100 - Galleria Porte Contarine, 2
email: padovacentro@grimaldifranchising.it
Tel. +39 49 663 033 - P.IVA 05301660287

Grimaldi Cadoneghe
Cadoneghe (PD) - 35010 - Via G. Franco, 2/A
email: cadoneghe@grimaldifranchising.it
tel. +39 049 88 736 56 - P.IVA 05322440289

NEWSLETTER

Iscriviti alla newsletter di Grimaldi Padova per ricevere direttamente le ultime novità immobiliari e le occasioni del mese.