Agenzia Grimaldi Padova

Centro, Piazza Castello. Elegante appartamento ultimo piano

Centro, Piazza Castello. Elegante appartamento ultimo piano

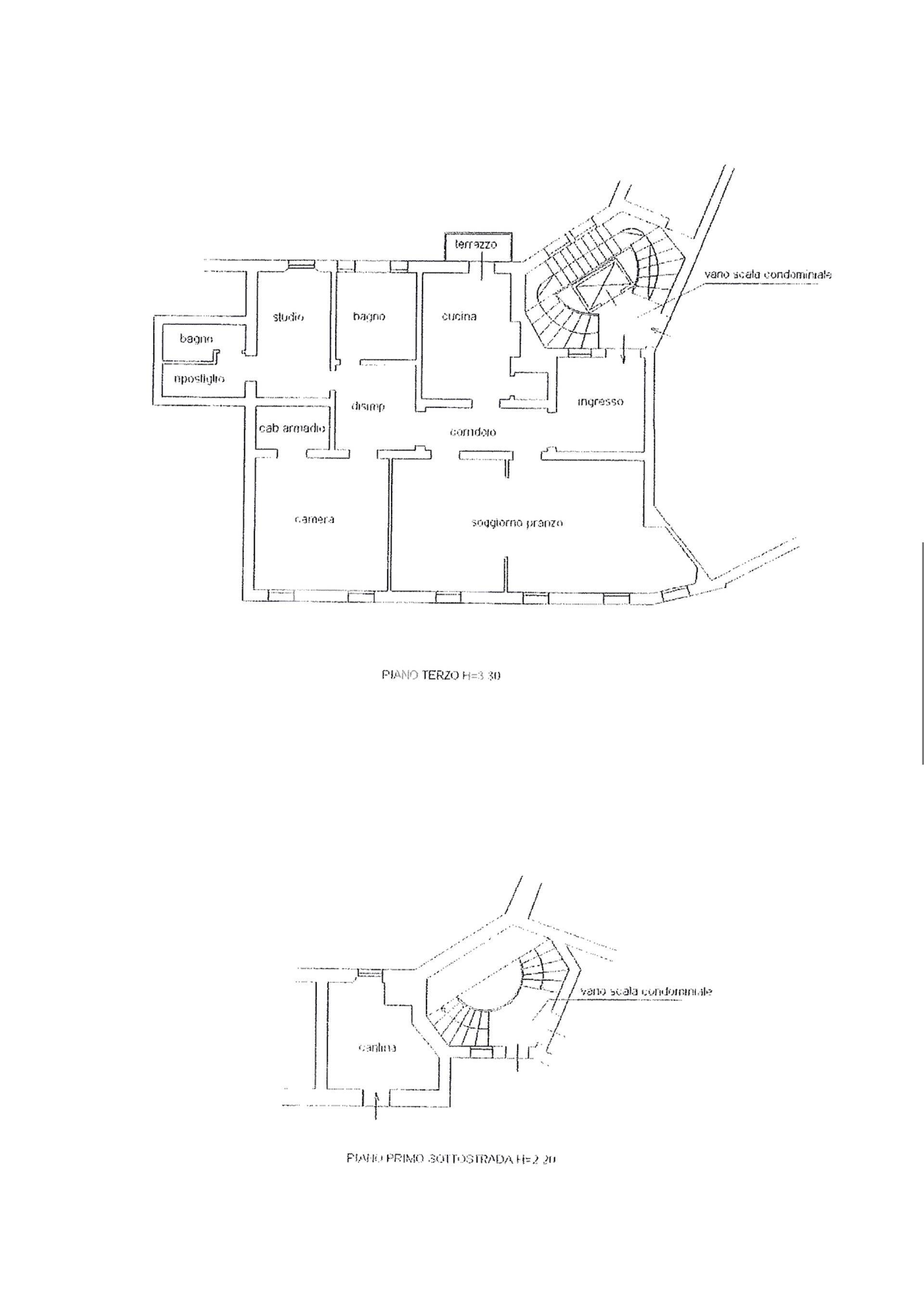
A pochi passi dall'Osservatorio Astronomico, inserito in elegante palazzina anni '30 di poche unità abitative dotata di ascensore, elegante e raffinato appartamento all'ultimo piano con vista sulle cupole del Santo. Ingresso signorile, salone con ampia zona pranzo, zona soggiorno e delizioso angolo relax, cucina abitabile tutta arredata in stile moderno con caminetto e terrazzino con affaccio interno, disimpegno zona notte, 2 camere da letto di cui una matrimoniale molto grande con comodissima cabina armadi, camera singola con altra cabina armadi e bagno padronale, altro bagno finestrato con doccia e vasca idromassaggio. La disposizione degli ambienti, per chi ne avesse la necessità, permette di realizzare anche una terza camera mantenedo una zona giorno spaziosa e confortevole. Completa l'appartamento una cantina finestrata ampia. Finituer signorili. Impianto di climatizzazione canalizzato con pompa di calore, pavimenti in legno pregiato cabreuva, porte interne in legno massiccio, alcune finestre sono in vetro piombato. € 720.000 ape 119,86 Cl. F

  • zona giorno
Grimaldi Padova

Grimaldi Padova
Padova - 35100 - Galleria Porte Contarine, 2
email: padovacentro@grimaldifranchising.it
Tel. +39 49 663 033 - P.IVA 05301660287

Grimaldi Cadoneghe
Cadoneghe (PD) - 35010 - Via G. Franco, 2/A
email: cadoneghe@grimaldifranchising.it
tel. +39 049 88 736 56 - P.IVA 05322440289

NEWSLETTER

Iscriviti alla newsletter di Grimaldi Padova per ricevere direttamente le ultime novità immobiliari e le occasioni del mese.